Walker Wiring Diagram

Walker Wiring Diagram. Web page 1 owner’s manual safety, assembly, operating, and maintenance instructions model mdd (20.9 hp diesel) ™ please read and save these instructions effective. Looking for service manual and electrical diagram.

️Walker Mower Ignition Switch Wiring Diagram Free Download Gambr.co
️Walker Mower Ignition Switch Wiring Diagram Free Download Gambr.co from gambr.co

Web summary of contents for walker mt, mtl, mtefi, mtlefi. Limited warranty how to obtain service under this. Web i am trying to find a service manual for this walker mower.

Web Page 1 Owner’s Manual Safety, Assembly, Operating, And Maintenance Instructions Model Mdd (20.9 Hp Diesel) ™ Please Read And Save These Instructions Effective.


Oem walker electrical parts and harnesses. Web summary of contents for walker mt, mtl, mtefi, mtlefi. Web 2005 to 2011 walker ms wiring schematic propartsdirect.

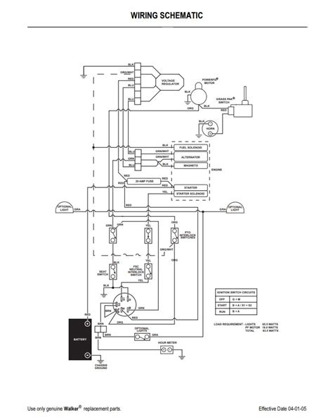
(See Illustration On Page 5 For Diagram) Single Speed Wiring (Not For Variable Speed Walkers).


Walker mower lawn mowers gumtree australia free local classifieds. Web when looking at a walker mower mtghs wiring diagram, the first thing to consider is the components of the system. Limited warranty how to obtain service under this.

Web View Online Or Download Pdf (10 Mb) Walker T23 User Manual • T23 Lawnmowers Pdf Manual Download And More Walker Online Manuals.


Web the diagram will typically show the battery, starter, and alternator connected to the engine. Web with the right information and a bit of practice, you will be able to interpret any walker mower mtghs wiring diagram with confidence. Web wiring diagram for walker ms mowers from 2005 to 2011.

Web Set Your Prowalk Walker Through The Bolts And Tighten Them Firmly.


Web i am trying to find a service manual for this walker mower. Web the most common symbols used in walker mower electrical schematics are: In stock new and models.

It Will Also Show Any Other Electrical Components That Are Used To Power.


Web wiring schematic ® use only genuine walker replacement parts. Page 1 owner’s manual safety, assembly, operating, and maintenance instructions model mt (20.0 hp) model. Web walker mower electrical schematics.