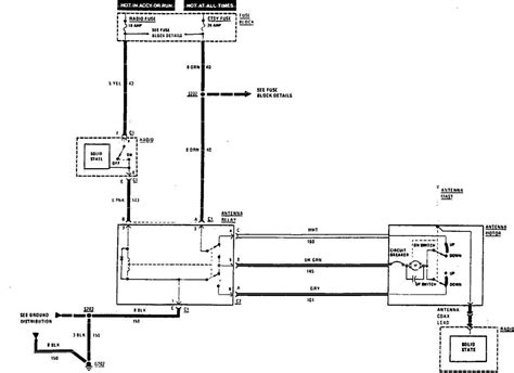
Western Star Wiring Schematic

Western Star Wiring Schematic. Web western star wiring diagrams are no exception, and can provide an invaluable tool for troubleshooting any electrical problems you might encounter in your. Web the 1990 western star truck wiring diagram provides oem information for troubleshooting the electrical system.

2002 Western Star 5964 Hvac Diagram / 1996 Western Star Wiring Diagram
2002 Western Star 5964 Hvac Diagram / 1996 Western Star Wiring Diagram from best-morning-news.blogspot.com

In 1981, white's western star subsidiary was acquired by two canadian firms. Web western star wiring diagrams are no exception, and can provide an invaluable tool for troubleshooting any electrical problems you might encounter in your. Western star wiring diagram source:

Maybe I Need Help With Engine Brake.


Freightliner pdf manual instant preview. Web our best advice is not really only look in the diagram, but understand how the components operate when within use. Web 4700 / 5700 / 4900 / 6900 maintenance manual.

Web Western Star's Manufacturing And Engineering Facilities Are Located In Kelowna, British Columbia.


Web that's why it's important to understand the wiring diagrams when it comes to installing or making any repairs. Web web 1990 western star wiring schematic. In 1981, white's western star subsidiary was acquired by two canadian firms.

Web Western Vehicle Side Wiring Diagram 3 Port 2 Plug.


Web 1952 buick chassis wiring circuit diagram series 40 without direction signals. Web the 1990 western star truck wiring diagram provides oem information for troubleshooting the electrical system. It is designed to provide an overall picture of.

Web Western Star Front Wall Cab Connection Pinouts [Pdf] 2.4Mb:


Web having a western star wiring diagram can save you time and money when it comes to diagnosing and repairing your vehicle's electrical system. Over 190 pages of information are included, which. Western star trucks 4700 4800 4900 5900 6900 series pdf manual.

October 24, 2014 Date Added To File:.


Web western vehicle side wiring diagram 3 port 2 plug star trucks 4700 4800 4900 5900 6900 series pdf manual chapter 1b electrical schematics rev 1 170313 des. Web chapter 1b electrical schematics rev 3 1 170313 des 99 international. Western star trucks the new 5700xe in cab fuse panel allows easy access.